
| Kaufpreis: 500.000 € | Objekt-Nr.: 6148 | Zimmer: 3 | Garage: |
| Wohnfläche: 89,8 m² | Hausgeld: 358 € | Typ: Etagenwohnung | Baujahr: 1999 |
Objektbeschreibung
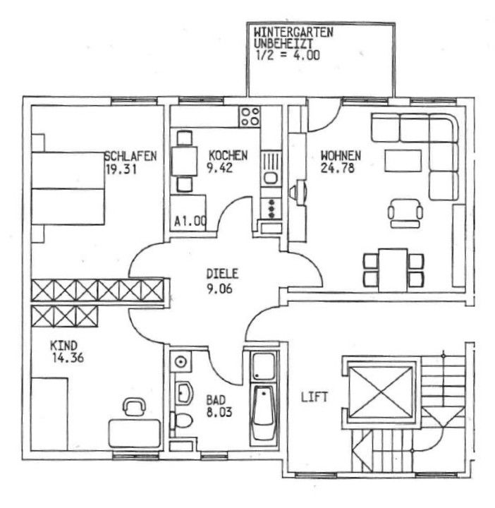
Die perfekt geschnittene 3 Zimmer Wohnung befindet sich im 1. Obergeschoss einer sehr gepflegten im Jahr 1999 erbauten Wohnanlage.
Die helle Wohnung besteht aus Flur, Bad, Küche, Wohnzimmer und 2 Schlafzimmern. Aus dem Wohnzimmer erreichen Sie den großen sonnigen Wintergarten mit Ausrichtung nach Westen. Die Wohnung ist mit einer Einbauküche ausgestattet. Hier ist jedes Zimmer mit mindestens einem Fenster versehen.
Die Wohnung ist sehr praktisch geschnitten und eignet sich hervorragend als Eigenheim für eine Familie wie auch für Paare mit Homeoffice oder zur Kapitalanlage.
Im Haus gibt es einen Lift sowie geräumigen Keller und eine Tiefgarage welche direkt durch den Hausflur zugänglich sind.
In der nächsten Zeit werden einige Sonderumlagen beschlossen, Details können wir gerne vor Ort oder im Telefongespräch klären. Es handelt sich hierbei um eine Dach- und Fassadensanierung.
Überzeugen Sie sich selbst und vereinbaren Sie einen Besichtigungstermin mit mir vor Ort.
Ausstattung
– sehr praktischer Grundriss
– helle Zimmer durch Fenster in allen Räumen
– Wintergarten nach Westen
– Böden mit Teppich, PVC, und Kork
– Tageslichtbad mit Dusche und Badewanne
– helle Einbauküche
– Heizungsbrenner 2010 erneuert
– Aufzug
– Tiefgaragenplatz
– Kellerabteil
Lage
Ihr neues Zuhause in einer absolut ruhigen Wohngegend inmitten von Ein- und Zweifamilienhäuser sowie kleinen Mehrfamilienhäusern und liegt unweit des Fürstenrieder Walds. Die Natur vor Ihrer Haustür. Ein Traum für Sie und Ihre Kinder. Nur ein paar Autominuten entfernt finden Sie das ca. 800 ha große Waldstück des Landschaftsschutzgebietes Forstenrieder Park.
Aber auch der Anschluss an die öffentlichen Verkehrsmittel ist in nur 200m durch die Buslinien 261 und 267 gegeben. Im weiteren Umfeld gibt es die Buslinien 260 und 269. Sie gelangen in ca. 5 Minuten zur U Bahn Haltestelle Fürstenried West und so schnell in die Münchner Innenstadt.
Geschäfte des täglichen Bedarfs, Ärzte aller Fachgebiete, sowie vielseitige Sport- und Freizeitmöglichkeiten bieten Ihnen ein hohes Maß an Lebensqualität und Freizeitwert. Diese finden Sie in Fürstenried West oder in Neuried.
Mit dem Auto geht es in wenigen Minuten auf die Autobahn A 95 Garmisch, so dass Sie sehr schnell am Starnberger See oder in den bayerischen Voralpenland sind. Die Umgebung bietet viele Möglichkeiten der Naherholung.
Zahlreiche Schulen und Kindertagesstätten bieten optimale Bildungsmöglichkeiten. Gymnasium, Realschule, Mittelschule und mehrere Grundschulen verteilen sich in naher Umgebung.
Das Gymnasium Fürstenried (ehemals „Gymnasium Fürstenried-West“) ist ein naturwissenschaftlich-sprachliches Gymnasium. Die Staatliche Realschule München II, finden Sie in der Engadiner Str., direkt daneben.
Der mitgliederstärkste Verein Neurieds ist der TSV Neuried e. V., der mit seinen Abteilungen von Turnen und Fußball über Walking und Skifahren bis hin zu Koronarsport allen Alters- und Interessensgruppen ein breites Angebot bietet. Zudem besteht in Neuried noch die Möglichkeit im Eisstock-Club Neuried e.V. das Eisstockschießen zu erlernen. Auch besitzt der TSV Neuried eine große Tischtennisabteilung mit fünf Herrenmannschaften und zwei Jugendmannschaften.










